Impressum | Datenschutzerklärung
HOME
LEISTUNGEN
REFERENZEN
HONORAR
PROFIL
KONTAKT
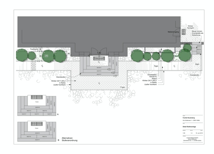
Gutshof Neugestaltung